Free account required
6
Free account required
$0.01 Rent
Listed 308 days ago
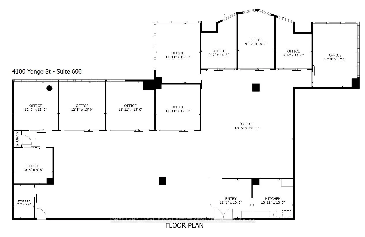
4100 Yonge Street, #606
· 0
· 0
· -
· -
Listing History
Buy/Sell/Terminated/Expired listing history for 4100 Yonge Street, #606
Key Facts
Key facts for 4100 Yonge Street, #606
Property Type
Commercial
Parking
Underground
MLS #
C11896490
Size
-
Basement
-
Listed on
2024-12-16
Lot size
0 x 0.0
Tax
$25.20 /yr
Days on Market
312
Approximate Age
16-30
Maintenance Fee
-
Description
Cost effective "A" Class Sublease opportunity. Fully furnished with sit/stand desks. Built out with offices, meeting rooms and kitchen. Ravine views. Term until May 30, 2030.
Similar Properties (No results)
Courtesy of: JONES LANG LASALLE REAL ESTATE SERVICES, INC.